C63
STUDIO
Residencial
PRIVAT
PUBLIC
Rehabilitacion
UNIFAMILIAR
PUBLICACIONS
CONTACTE
Taller d'arquitectura, urbanisme i Paisatge
C63
STUDIO
Residencial
PRIVAT
PUBLIC
Rehabilitacion
UNIFAMILIAR
PUBLICACIONS
CONTACTE
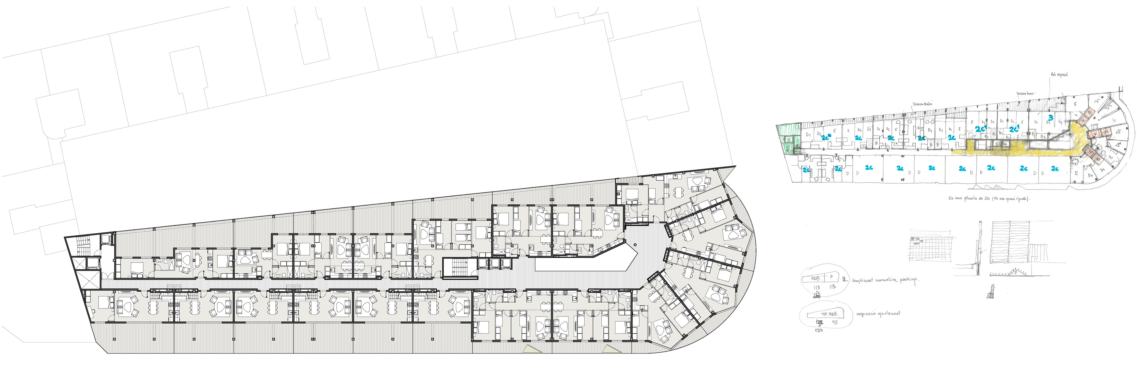
Habitatges Verdaguer
Architects: Espinet-Ubach
Date: 2018
Type: Rehabilitation
Site: Barcelona
Awards:
↑
Back to Top