C63
STUDIO
Residencial
PRIVAT
PUBLIC
Rehabilitacion
UNIFAMILIAR
PUBLICACIONS
CONTACTE
Taller d'arquitectura, urbanisme i Paisatge
C63
STUDIO
Residencial
PRIVAT
PUBLIC
Rehabilitacion
UNIFAMILIAR
PUBLICACIONS
CONTACTE
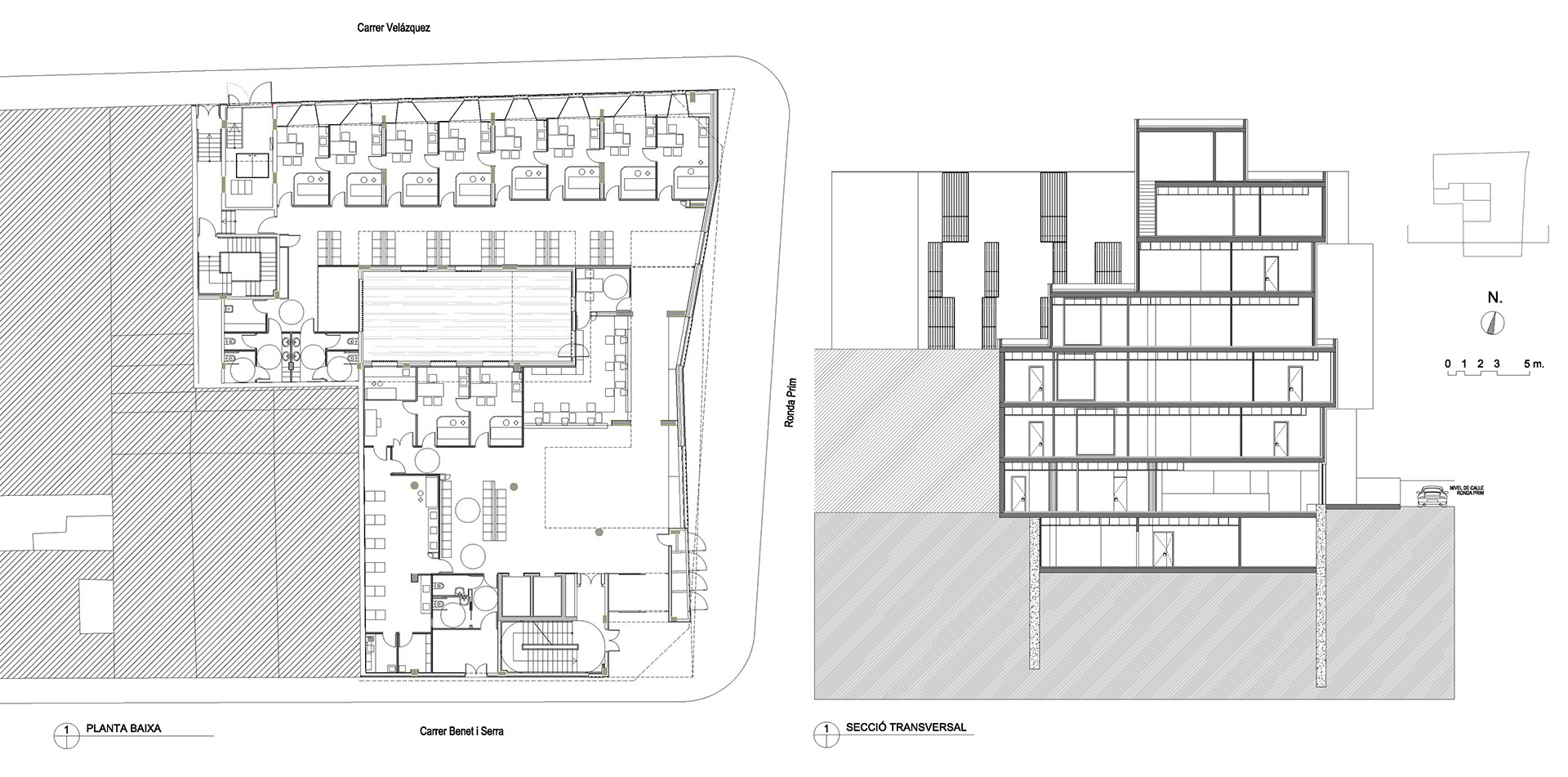
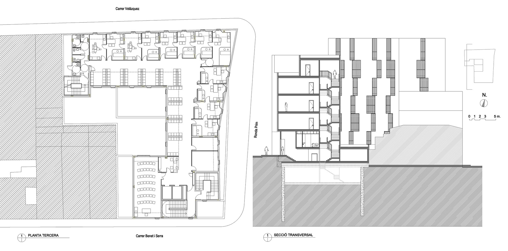
Cap de Matarò
Architects: Espinet-Ubach
Date: 2019
Type: Public
Site: Matarò
Awards:
↑
Back to Top