C63
STUDIO
Residencial
PRIVAT
PUBLIC
Rehabilitacion
UNIFAMILIAR
PUBLICACIONS
CONTACTE
Taller d'arquitectura, urbanisme i Paisatge
C63
STUDIO
Residencial
PRIVAT
PUBLIC
Rehabilitacion
UNIFAMILIAR
PUBLICACIONS
CONTACTE
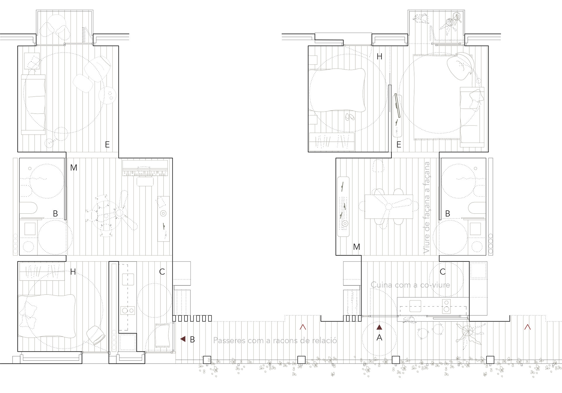
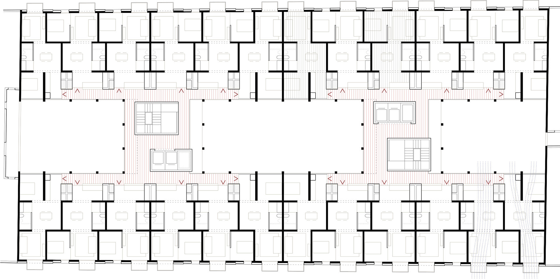
HABITATGES PER A GENT GRAN
Arquitectos:
Fecha:
Tipo:
Sitio:
↑
Back to Top