C63
STUDIO
Residencial
PRIVAT
PUBLIC
Rehabilitacion
UNIFAMILIAR
PUBLICACIONS
CONTACTE
Taller d'arquitectura, urbanisme i Paisatge
C63
STUDIO
Residencial
PRIVAT
PUBLIC
Rehabilitacion
UNIFAMILIAR
PUBLICACIONS
CONTACTE
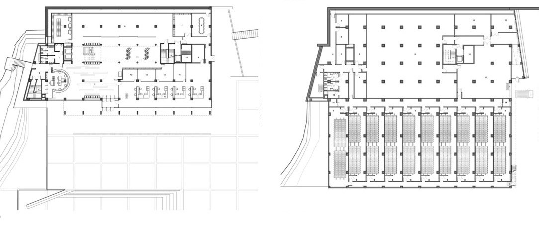
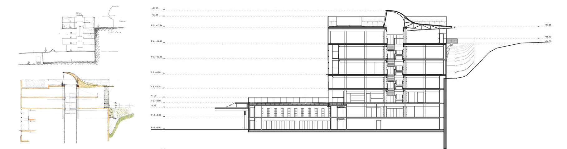
Biblioteca i Hemeroteca UAB
Architects: Espinet-Ubach
Date: 2002
Type: Public, Education
Site: Balleterra
Awards:
↑
Back to Top